Laan van Vredestein 21, Den Haag

Omschrijving

Deze gemoderniseerde en instapklare eengezinswoning combineert comfort, ruimte en een unieke ligging aan het water. De woning beschikt over een royale voortuin, een zonnige op zuidoosten gelegen achtertuin met eigen vlonder aan het water en een lichte woonkamer met originele serre en glazen dak, wat zorgt voor een zee aan daglicht. Parkeren kan op eigen terrein en daarnaast is er een parkeergarage/box direct tegenover de woning. Verder is de woning voorzien van een moderne open keuken met inbouwapparatuur, verzorgd sanitair en een praktische bijkeuken – een compleet en sfeervol thuis op een fijne locatie

________________________________________
OMGEVING
De woning is gelegen aan de Laan van Vredestein in de wijk Houtwijk (Loosduinen), een rustige en kindvriendelijke woonomgeving. Op loopafstand bevindt zich een kleinschalig winkelcentrum met een gevarieerd aanbod voor de dagelijkse boodschappen. In de directe omgeving is veel groen aanwezig, met diverse parken zoals ’t Kleine Hout, het Florence Nightingalepark en het Bokkefortpark. Het strand van Kijkduin ligt op circa 15 minuten fietsen.

________________________________________
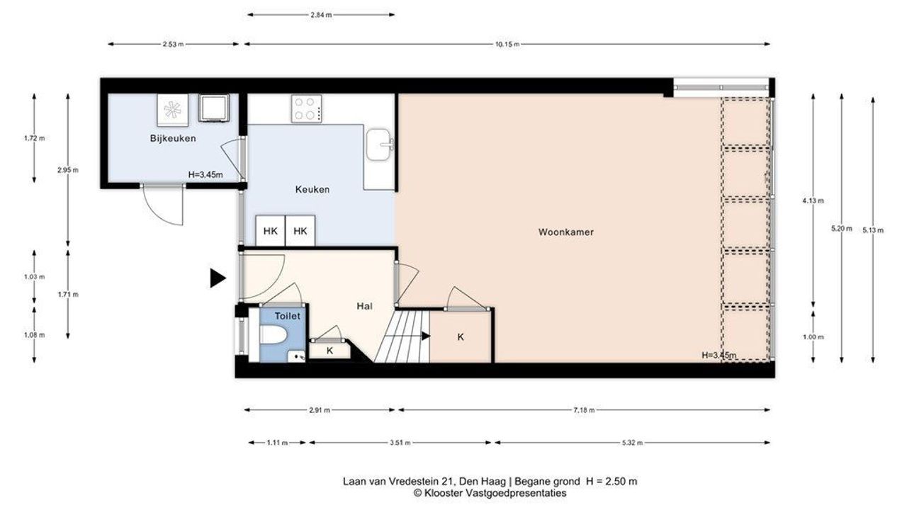
INDELING
Begane grond
Voortuin met parkeergelegenheid op eigen terrein. Entree van de woning met hal, meterkast en modern toilet voorzien van een zwevend closet en fonteintje.
De open keuken heeft een moderne, rustige uitstraling en staat in directe verbinding met de woonkamer. De keuken is praktisch ingedeeld en voorzien van diverse inbouwapparatuur en veel werk- en opbergruimte. Aansluitend bevindt zich de bijkeuken met opstelplaats voor wasmachine en droger.
De ruime woonkamer is heerlijk licht dankzij de grote raampartijen en de originele serre met glazen dak. De warme afwerking, houttinten en groene accentwand zorgen voor een gezellige en uitnodigende sfeer. Via de openslaande deuren is er direct toegang tot de achtertuin, waardoor binnen en buiten naadloos in elkaar overlopen.
De zonnige achtertuin beschikt over een ruim terras, biedt veel privacy en ligt direct aan het water met een eigen vlonder – een heerlijke plek om te ontspannen en van het buitenleven te genieten.
________________________________________
Eerste verdieping
Overloop. Aan de achterzijde bevindt zich een lichte en ruime slaapkamer. De moderne badkamer is sfeervol en licht dankzij het dakraam en de rustige kleurstelling. De badkamer is voorzien van een comfortabele inloopdouche met glazen wand, een zwevend toilet en een stijlvol wastafelmeubel met spiegelkast. De nette afwerking en tijdloze materialen maken dit een prettige ruimte om de dag te beginnen of af te sluiten.
Aan de voorzijde bevindt zich een tweede slaapkamer met een dubbel dakraam, wat zorgt voor veel natuurlijk licht.
________________________________________
Tweede verdieping
De royale zolderkamer is licht en veelzijdig, met een prettige plafondhoogte en meerdere dakramen. Een rustige ruimte die uitstekend geschikt is als extra slaapkamer, werkruimte of hobbykamer.

Parkeergarage (seperaat):
Aan de overzijde van de woning bevindt zich de parkeergarage/box. De garage heeft een oppervlakte van circa 16 m² en is voorzien van een vliering, wat zorgt voor extra praktische bergruimte. Voorzien van elektra met een eigen meter.

BIJZONDERHEDEN
• Gelegen op eigen grond;
• 10 zonnepanelen;
• Volledig voorzien van dubbel glas;
• Parkeergelegenheid op eigen terrein voor twee auto’s;
• Parkeergarage/box separaat te koop voor € 45.000,- kosten koper;
• Zonnige achtertuin aan het water met veel privacy;
• Verwarming middels HR-CV-ketel Remeha Avanta 2024;
• Close-in boiler Daalderop 2019:
• Goede bereikbaarheid met het openbaar vervoer: buslijnen 21, 26, 31, 456 en N3 en tramlijn 2;
• Bijdrage voor vrijwillige vve garage € 22,50 per jaar;
• Verkoopvoorwaarden, clausules en biedingen verlopen via Eerlijk Bieden.

Kenmerken

Prijs
€ 575.000 k.k.
Status
Beschikbaar
Oplevering
In overleg

Bouw

Soort woonhuis
Eengezinswoning, Tussenwoning
Soort bouw
Bestaande bouw
Bouwjaar
1988
Onderhoud binnen
Goed
Onderhoud buiten
Goed

Oppervlakten en inhoud

Woonoppervlakte
120m²
Perceeloppervlakte
164m²
Inhoud
380m³

Indeling

Aantal kamers
4
Aantal slaapkamers
3
Aantal verdiepingen
3

Energie

Energielabel
A

Buitenruimte

Ligging
Aan het water, In woonwijk
Tuin
Achtertuin, Voortuin
Voortuin
Noordwest, 47m², 522×766cm

Garage

Soort garage
Vrijstaand steen
Afmetingen
15.59m², 2.83×5.51

Plattegronden

Locatie

[ { "address": "Laan van Vredestein 21", "zipCode": "2552 DT", "city": "Den Haag", "lat": 52.0565607, "lng": 4.2536095, "heading": 0, "pitch": 0 } ]

Reageer

Uw bericht is naar ons verzonden. Wij nemen zo snel mogelijk contact met u op.

Er is iets mis gegaan met het versturen van het formulier.
Controleer of u alle velden (goed) heeft ingevoerd en probeer het nog een keer.

U bent geen robot, hoeveel is ?  

Vergelijkbare woningen

Verkocht
Forellendaal 366
2553 LN Den Haag
€ 550.000 k.k.
151m² 7 kamers
Verkocht
Dalfsenstraat 21
2541 VR Den Haag
€ 500.000 k.k.
125m² 5 kamers
Verkocht
Watervlierstraat 62
2563 PZ Den Haag
€ 485.000 k.k.
104m² 4 kamers
Verkocht
Dibbetsstraat 24
2518 PS Den Haag
€ 500.000 k.k.
103m² 4 kamers