Dibbetsstraat 24, Den Haag Verkocht

Omschrijving

Dit ruime en lichte 4-kamer top-appartement (ca. 107) combineert modern wooncomfort met het karakter van een klassieke Haagse portiekwoning. Gelegen in de populaire wijk Rond de Energiecentrale (Regentessekwartier), woon je hier rustig én toch vlak bij het bruisende hart van Den Haag.

Grote raampartijen, een sfeervolle erker en een lichte afwerking geven de woning een prettige en open sfeer. In de afgelopen jaren is het appartement gerenoveerd, waarbij stijl en comfort hand in hand gaan. De woning beschikt over een moderne keuken met hoogwaardige inbouwapparatuur, drie volwaardige slaapkamers, een luxe sanitair en een zonnig balkon op het zuidwesten waar u heerlijk kunt genieten van de middag- en avondzon.

LOCATIE
• De ligging is ideaal: een rustige straat, maar met alles binnen handbereik
• Voor een kop koffie zit u zó op het terras aan het Koningsplein. Voor winkels, speciaalzaken en leuke horeca loopt of fiets u naar de gezellige Prins Hendrikstraat of Reinkenstraat. Of natuurlijk naar het Haagse centrum, slechts enkele minuten fietsen
• Voor ontspanning liggen park De Verademing, de Paleistuin of de Haagse Bosjes allemaal dichtbij
• Openbaar vervoer (bus en tram) is uitstekend geregeld, met goede verbindingen binnen Den Haag en de regio

INDELING
Begane grond:
Open portiek met trapopgang.
Eerste verdieping:
Entree, hal, meterkast, trap
Tweede verdieping:
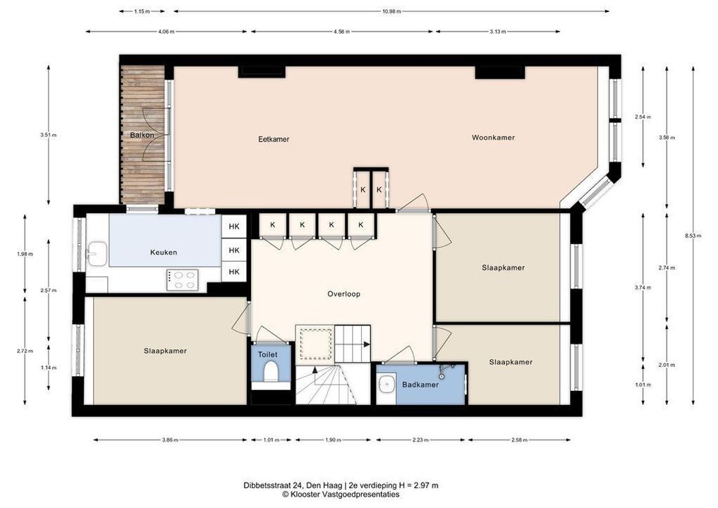
Een royale hal met volop vaste kastruimte en een opstelplaats voor wasmachine en droger. Een lichte woonkamer met charmante erker aan de voorzijde, ideaal om te genieten van de ochtendzon. Aan de achterzijde bevindt zich de eetkamer, met openslaande deuren naar het balkon op het zonnige zuidwesten, dé plek voor een borrel of diner in de avondzon. De moderne keuken is voorzien van een ruim werkblad, volop kastruimte en hoogwaardige Siemens keukenapparatuur, waaronder een inductiekookplaat met vijf zones, oven, koel-vriescombinatie, vaatwasser, afzuigkap én een Quooker voor direct kokend water. De badkamer is volledig betegeld en uitgevoerd met een inloopdouche en stijlvol wastafelmeubel. Daarnaast een separate toiletruimte met zwevend closet. De drie slaapkamers, twee aan de voorzijde en één aan de achterzijde, maken dit appartement compleet. De hele woning ademt warmte door de lamelparket eikenhouten vloer.

Bijzonderheden:
• Woonoppervlakte: ca. 107 m2;
• Eigen grond;
• 3 slaapkamers;
• Kozijnen voorzijde geschilderd 2023, kozijnen achterzijde deels kunststof, deels hout;
• De houten kozijnen zijn voorzien van HR, HR++ en delen met glas in lood met voorzetglas;
• Vloer afgewerkt met een warme parket laminaatvloer;
• Beschermd stadsgezicht Regentessekwartier;
• Vaillant CV HR-combiketel;
• Slimme radiatoren, individueel regelbaar via Tado (huisautomatisering);
• Energielabel C;
• Betaald parkeren/vergunninghouders (dagelijks van 18:00 tot 24:00 uur);
• Uitstekende ligging nabij winkels, horeca, theater, strand en openbaar vervoer tram 3, 11, 12, 34 & bus N3;
• Oplevering in overleg;
• Ouderdoms- en materialenclausule van toepassing (zie verkoopvoorwaarden via Eerlijk Bieden).

Vereniging van eigenaren;
• Actieve vereniging van eigenaren met een maandelijkse bijdrage van € 108,77;
• Regelmatige vergaderingen;
• Meerjarenonderhoudsplan beschikbaar;
• Gemeenschappelijke gebouwverzekering.

Kortom: een stijlvol en comfortabel appartement met drie slaapkamers, een zonnig balkon en een fantastische ligging in een van de leukste wijken van Den Haag. Hier combineer je karakter, comfort en stadse gezelligheid in één woning.


This spacious and bright 4-room top-floor apartment (approx. 107 m²) combines modern living comfort with the character of a classic Hague portico house. Located in the popular district Rond de Energiecentrale (Regentessekwartier), you’ll live here in peace and quiet yet close to the vibrant heart of The Hague.

Large windows, a charming bay window and a light finish give the home a pleasant and open atmosphere. In recent years the apartment has been renovated, combining style and comfort. The property features a modern kitchen with high-quality built-in appliances, three full bedrooms, a luxury bathroom and a sunny southwest-facing balcony where you can enjoy the afternoon and evening sun.
.

Location:
• The location is ideal: a quiet street, right on the edge of The Hague’s city center, with numerous amenities within walking or cycling distance.
• For a cup of coffee, you can be on a terrace at Koningsplein within minutes.
• For shops, specialty stores and cosy restaurants, you can walk or cycle to the lively Prins Hendrikstraat or Reinkenstraat. Or of course to The Hague city centre, just a few minutes by bike.
• For relaxation, park De Verademing, the Paleistuin or the Haagse Bosjes are all nearby.
• Public transport is excellent with tram and bus connections to the city centre, the beach and further into the region

Layout
Ground floor:
Open portico, staircase.

1st floor:
Entrance, hall, meter cupboard, stairs.

2nd floor:
a spacious hall with ample built-in storage and a space for washing machine and dryer. A bright living room with a charming bay window at the front, ideal for enjoying the morning sun. At the rear is the dining room with French doors leading to the southwest-facing balcony, the perfect spot for a drink or dinner in the evening sun.
The modern kitchen offers plenty of worktop and cupboard space and features high-quality Siemens appliances, including a five-zone induction hob, oven, fridge-freezer, dishwasher, extractor hood and a Quooker providing instant boiling water. The bathroom is fully tiled and equipped with a walk-in shower and stylish washbasin unit. Additionally, there is a separate toilet with floating closet. The three bedrooms, two at the front and one at the rear, complete this apartment. The entire home exudes warmth thanks to the beautiful oak engineered parquet laminate floor.

Particularities:
• Living area approx. 107 m²;
• Freehold property;
• 3 bedrooms;
• Window frames at the front painted in 2023; rear bedroom and kitchen frames replaced in 2018;
• Wooden window frames with HR and HR++ glass; stained-glass windows with secondary glazing;
• Flooring finished with warm parquet laminate;
• Located within the protected cityscape of Regentessekwartier;
• Vaillant HR central heating boiler;
• Smart radiators, individually controllable via Tado (home automation);
• Energy label C;
• Paid parking / resident permits: Monday to Sunday, 18:00 – 24:00;
• Excellent location close to shops, restaurants, theaters, the beach, and public transport (tram 3, 11, 12, 34 & night bus N3);
• Transfer in consultation;
• Age and materials clauses applicable (see sales conditions via Eerlijk Bieden).

Owners’ Association (VvE):
• Active owners’ association, monthly contribution € 108.77;
• Regular meetings;
• Multi-year maintenance plan available;
• Collective building insurance.

Kenmerken

Status
Verkocht
Oplevering
In overleg

Bouw

Soort appartement
Portiekwoning, Appartement
Soort bouw
Bestaande bouw
Bouwjaar
1915
Onderhoud binnen
Goed
Onderhoud buiten
Goed

Oppervlakten en inhoud

Woonoppervlakte
103m²
Inhoud
375m³

Indeling

Aantal kamers
4
Aantal slaapkamers
3
Aantal verdiepingen
2

Energie

Energielabel
C

Plattegronden

Locatie

[ { "address": "Dibbetsstraat 24", "zipCode": "2518 PS", "city": "Den Haag", "lat": 52.0774235, "lng": 4.2920196, "heading": 0, "pitch": 0 } ]

Reageer

Uw bericht is naar ons verzonden. Wij nemen zo snel mogelijk contact met u op.

Er is iets mis gegaan met het versturen van het formulier.
Controleer of u alle velden (goed) heeft ingevoerd en probeer het nog een keer.

U bent geen robot, hoeveel is ?  

Vergelijkbare woningen

Verkocht
Forellendaal 366
2553 LN Den Haag
€ 550.000 k.k.
151m² 7 kamers
Verkocht
Loudonstraat 84
2593 WB Den Haag
€ 450.000 k.k.
94m² 4 kamers
Verkocht
Troelstrakade 41 A
2531 AA Den Haag
€ 425.000 k.k.
102m² 3 kamers
Verkocht
Bruinbankstraat 19
2583 PC Den Haag
€ 400.000 k.k.
96m² 4 kamers