Bruijnings Ingenhoeslaan 81, Voorburg

Omschrijving

Sfeervol en instapklaar 3-kamer portiekappartement met zonnig balkon in het hart van Voorburg

Op een centrale en geliefde locatie in Voorburg ligt dit keurig onderhouden en smaakvol gemoderniseerde 3-kamerappartement van ca. 61 m². Dit fraaie appartement is volledig gemoderniseerd en direct te betrekken. De gehele woning is voorzien van een nette laminaatvloer en afgewerkt in neutrale kleuren, wat zorgt voor een frisse en eigentijdse uitstraling.
De woning beschikt over een heerlijk zonnig balkon op het westen en een eigen fietsenberging achter het appartementencomplex.
Dit lichte appartement combineert comfort en modern woonplezier met een uitstekende bereikbaarheid, ideaal voor starters, stellen of kleine huishoudens die zorgeloos willen wonen nabij alle voorzieningen.

Indeling
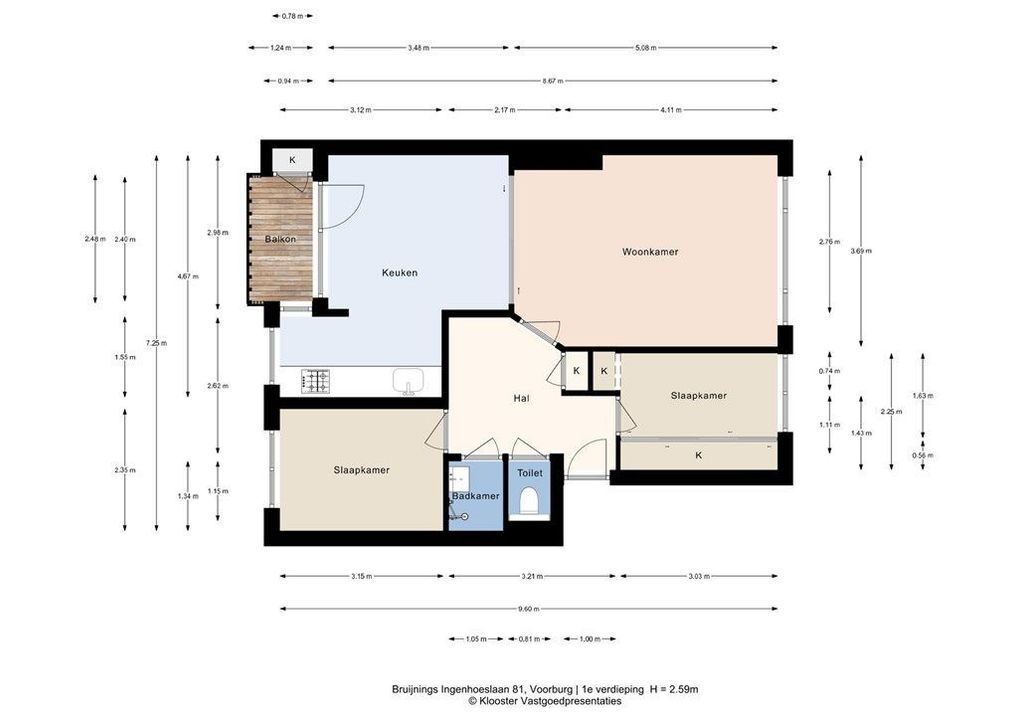
Begane grond:
Afgesloten portiek met brievenbussen en bellentableau; trappenhuis;

Eerste verdieping:
De entree appartement; ruime overloop met diepe, vaste kast; modern, volledig betegeld toiletruimte. De moderne badkamer is tevens bereikbaar vanuit de overloop en is stijlvol afgewerkt en voorzien van een douche en wastafel en handdoekenradiator.
Aan de voorzijde bevindt zich de royale en lichte woonkamer met fraai uitzicht. Via een kamer en suite schuifseparatie zonder zijkasten staat de woonkamer in verbinding met de eetkamer aan de achterzijde, wat zorgt voor een speelse en open indeling met veel lichtinval.
De moderne, doorgebroken keuken is gesitueerd aan de achterzijde en is voorzien van diverse inbouwapparatuur, waaronder een 4-pits gaskookplaat, oven, afzuigkap, vaatwasser, ingebouwde wasmachine en een koelkast met vriezer. Vanuit zowel de keuken als de eetkamer heeft u toegang tot het zonnige balkon op het noordwesten, een fijne plek om van de zon te genieten. Het balkon beschikt tevens over een praktische balkonkast.
Het appartement beschikt over twee slaapkamers: een slaapkamer aan de voorzijde met vaste kast en de grote slaapkamer aan de achterzijde.


Kenmerken en bijzonderheden
• Woonoppervlakte ca. 61 m²
• Energielabel B
• Ruime en lichte woon-/eetkamer met kamer en suite seperatie
• Moderne, gemoderniseerde keuken met inbouwapparatuur
• Vernieuwd en smaakvol afgewerkt sanitair
• HR++ glas en kunststof kozijnen
• Twee slaapkamers
• Fijn balkon op het noordwesten
• HR CV-combiketel met bouwjaar (2018)
• Fietsenberging achter het gebouw op de begane grond
• Gelegen in een gebied met blauwe zone voor straatparkeren
• Uitstekende ligging nabij openbaar vervoer (tramlijnen 2 en 3) en op 10 minuten loopafstand van station Laan van NOI, met trein-, tram- en metroverbindingen
• Gelegen nabij winkels, 5 minuten rijden naar de oprit van de snelwegen A4/A12/A13 en op ca. 10 minuten fietsen van het centrum van Den Haag


Vereniging van Eigenaren (VvE):
• Actieve vereniging van eigenaren met een maandelijkse bijdrage van € 141.75
• 1/21ste e aandeel in de gemeenschap;
• Collectieve opstalverzekering aanwezig;
• Ingeschreven in de kamer van koophandel;
• Gemeenschappelijke opstalverzekering;
• Meer jarenonderhoudsplan aanwezig.

Ligging
De woning ligt op een uitstekende locatie in Voorburg: centraal, groen en met alle dagelijkse voorzieningen binnen handbereik. Park ’t Loo, winkelcentrum Julianabaan, buurtwinkels en openbaar vervoer bevinden zich op loopafstand. • Uitstekende ligging nabij openbaar vervoer (tramlijnen 2 en 3) en op 10 minuten loopafstand van station Laan van NOI, met trein-, tram- en metroverbindingen. Gelegen nabij winkels, 5 minuten rijden naar de oprit van de snelwegen A4/A12/A13 en op ca. 10 minuten fietsen van het centrum van Den Haag. Kortom: een verzorgd, licht en modern appartement op een toplocatie en klaar om zo te betrekken.

Grotendeels recent gerenoveerde en goed onderhouden woning:
• keuken volledig vernieuwd en wand doorgebroken in 2020
• Badkamer en toiletruimte vernieuwd in 2023
• Kunststof kozijnen geplaatst in de woning met HR++ in 2019

Atmospheric and Move-In Ready 2-Bedroom Apartment with Sunny Balcony in the Heart of Voorburg

Located in a central and highly desirable area of Voorburg, this well-maintained and tastefully modernized 2-bedroom apartment (approx. 61 m²) offers comfortable and contemporary living. The property has been fully updated and is ready for immediate occupancy. The entire apartment features neat laminate flooring and is finished in neutral tones, creating a fresh and modern appearance. The apartment boasts a lovely west-facing sunny balcony and a private bicycle storage unit at the rear of the building.
This bright apartment combines comfort and modern living with excellent accessibility ideal for first-time buyers, couples, or small households seeking carefree living close to all amenities.

Layout
Ground floor:
Secured entrance with mailboxes and intercom system; staircase.

First floor:
Apartment entrance; spacious hallway with a deep built-in storage cupboard; modern, fully tiled toilet. The stylish bathroom, also accessible from the hallway, is beautifully finished and equipped with a shower, washbasin, and towel radiator.
At the front of the apartment you will find the spacious and bright living room with a pleasant view. Through original en-suite sliding doors (without side cabinets), the living room connects to the dining room at the rear, creating a playful and open layout with plenty of natural light.

The modern, opened-up kitchen is located at the rear and features various built-in appliances, including a 4-burner gas hob, oven, extractor hood, dishwasher, built-in washing machine, and a fridge with freezer compartment. From both the kitchen and the dining room, you have access to the sunny northwest facing balcony a perfect spot to enjoy the sun. The balcony also includes a practical storage cupboard.
The apartment offers two bedrooms:
One bedroom at the front with a built-in wardrobe and the primary bedroom at the rear.

Features and Special Characteristics
• Living area approx. 61 m²
• Energy label B
• Spacious and bright living/dining room with en-suite separation
• Modernized kitchen with built-in appliances
• Renovated and tastefully finished sanitary facilities
• HR++ double glazing and plastic window frames
• Two bedrooms
• Nice northwest facing balcony
• HR central heating combi boiler (installed in 2018)
• Bicycle storage at the rear of the building (ground floor)
• Located in a blue zone street parking area (permit/limited-time parking).
• Excellent location near public transport (tram lines 2 and 3) and a 10-minute walk to Laan van NOI station, which offers train, tram, and metro connections
• Conveniently located near shops, 5-minute drive to the A4/A12/A13 motorway entrance, and approx. 10 minutes by bike from The Hague city center

Homeowners’ Association (VvE)
• Active homeowners’ association with a monthly contribution of €141.75
• 1/21st share in the community
• Collective building insurance in place
• Registered with the Chamber of Commerce
• Multi-year maintenance plan available

Location
The property is situated in an excellent location in Voorburg: central, green, and with all daily amenities within easy reach. Park ’t Loo, the Julianabaan shopping center, local shops, and public transport are within walking distance. Additionally, the vibrant city center of The Hague can be reached within approximately 10 minutes by bicycle. Located near shops, 5-minute drive to the A4/A12/A13 motorway entrance, and approx. a 10-minute walk to Laan van NOI station, which offers train, tram, and metro connections.
In short: a well-maintained, bright, and modern apartment in a prime location, ready to move into.

Largely Recently Renovated and Well-Maintained Property
• Kitchen fully renewed and wall removed in 2020
• Bathroom and toilet renovated in 2023
• Plastic window frames with HR++ glazing installed in 2019

Kenmerken

Prijs
€ 325.000 k.k.
Status
Beschikbaar
Oplevering
In overleg

Bouw

Soort appartement
Portiekflat, Appartement
Soort bouw
Bestaande bouw
Bouwjaar
1950
Onderhoud binnen
Goed
Onderhoud buiten
Goed

Oppervlakten en inhoud

Woonoppervlakte
61m²
Inhoud
205m³

Indeling

Aantal kamers
3
Aantal slaapkamers
2
Aantal verdiepingen
1

Energie

Energielabel
B

Buitenruimte

Ligging
Aan rustige weg, In woonwijk

Plattegronden

Locatie

[ { "address": "Bruijnings Ingenhoeslaan 81", "zipCode": "2273 KK", "city": "Voorburg", "lat": 52.0792992, "lng": 4.351198, "heading": 0, "pitch": 0 } ]

Reageer

Uw bericht is naar ons verzonden. Wij nemen zo snel mogelijk contact met u op.

Er is iets mis gegaan met het versturen van het formulier.
Controleer of u alle velden (goed) heeft ingevoerd en probeer het nog een keer.

U bent geen robot, hoeveel is ?