Lijnbaan 130, Den Haag

Omschrijving

Goed onderhouden 3 kamer portiekflat met balkon en berging op een centrale locatie.

Op een fantastische locatie, midden in de binnenstad van Den Haag, ligt dit lichte en goed onderhouden 3-kamerappartement met balkon en privéberging. De woning bevindt zich op de eerste verdieping van een verzorgd portiekcomplex en beschikt over een royale woonkamer, moderne keuken en twee slaapkamers.
Wonen in deze buurt betekent dat u alles wat Den Haag te bieden heeft binnen handbereik heeft. Op loopafstand vindt u de gezellige Prinsestraat, het levendige Plein en de sfeervolle Grote Markt – plekken waar u kunt genieten van een drankje op het terras, een diner in één van de vele restaurants of een avondje uit. Ook bekende winkelstraten zoals de Venestraat en Spuistraat, het Binnenhof, het Mauritshuis en diverse theaters liggen op steenworp afstand. Dankzij de gunstige ligging zijn tram en bus eenvoudig bereikbaar, waardoor u binnen korte tijd bij het Centraal Station, het Strand van Scheveningen of andere delen van de stad bent.

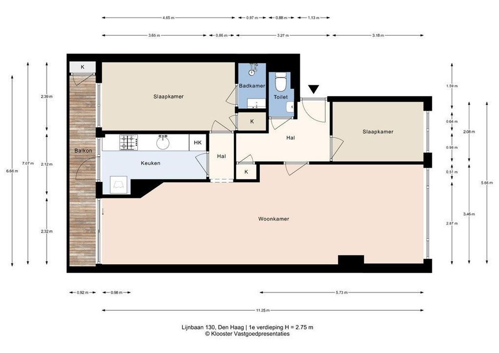
Indeling:
Bij binnenkomst via de verzorgde portiek bereikt u via het trappenhuis de eerste verdieping, waar de entree van het appartement zich bevindt. Vanuit de hal heeft u toegang tot alle vertrekken. Aan de voorzijde ligt een lichte slaapkamer, ideaal als hoofdslaapkamer of werkkamer. De royale woonkamer is opvallend ruim en licht dankzij de grote ramen en de schuifpui die toegang biedt tot het balkon – een fijne plek om van de buitenlucht te genieten.
De moderne keuken is praktisch ingedeeld en voorzien van alle gemakken, waaronder een ruim werkblad, gaskookplaat, oven, RVS-afzuigkap, vaatwasser en koel-vriescombinatie. Aan de achterzijde bevindt zich de tweede slaapkamer, grenzend aan het balkon. De nette badkamer beschikt over een inloopdouche en een wastafelmeubel, en het separate toilet is uitgerust met een fonteintje.
Op de begane grond vindt u bovendien een eigen berging, ideaal voor het stallen van fietsen of extra opslag.

Bijzonderheden:
• Woonoppervlakte: ca. 73m2
• 2 slaapkamers;
• Energielabel C;
• Geheel voorzien van kunststof kozijnen met dubbelglas;
• Privéberging voor o.a. fietsen;
• Verwarming en warm water middels Intergas HRE combi ketel boujaar 2020;
• Moderne keuken met inbouwapparatuur;
• Erfpacht: eeuwigdurende obligatoire her uitgifte met canonverplichting van € 253,- per halfjaar (eerste renteherziening 1 januari 2028)
• Oplevering op korte termijn mogelijk;
• Betaald parkeren / vergunninghouders:
• Ma-do: 09.00 – 24.00 uur
• Vr: 09.00 – za 02.00 uur
• Za: 09.00 – zo 02.00 uur
• Zo: 13.00 – 24.00 uur
• Tarief: € 7,00 per uur, max. 120 minuten
• Openbaar vervoer: tram 2, 3, 4 & 34 en bus 25 & 51
• Op loopafstand van alle voorzieningen;
• Verkoop via Eerlijk Bieden; onze verkoopvoorwaarden zijn te vinden op de woningwebsite van Eerlijk Bieden

Vereniging van eigenaren;
• Actieve en professioneel beheerde VvE
• Maandelijkse bijdrage van: €199,25
• Inclusief opstalverzekering en meerjaren onderhoudsplan
• Vergadert minimaal één keer per jaar


ENTHOUSIAST GEWORDEN? VRAAG DAN VIA FUNDA EEN BEZICHTIGING AAN OF VIA ONZE ISEE.NL KANTOORWEBSITE. U ONTVANGT DIRECT EEN E-MAIL MET ONZE PLANNER, WAARMEE U EENVOUDIG ZELF EEN BEZICHTIGING KUNT INPLANNEN.



Well-maintained 3-room apartment with balcony and storage room in a central location

In a fantastic location, right in the city center of The Hague, you will find this bright and well-maintained 3-room apartment with balcony and private storage room. The property is located on the first floor of a well-kept portico complex and features a spacious living room, modern kitchen, and two bedrooms.

Living in this neighborhood means having everything The Hague has to offer within easy reach. Within walking distance, you will find the charming Prinsestraat, the lively Plein, and the atmospheric Grote Markt – perfect places to enjoy a drink on a terrace, a dinner at one of the many restaurants, or a night out. Popular shopping streets such as Venestraat and Spuistraat, as well as the Binnenhof, the Mauritshuis, and several theaters, are also just a stone’s throw away. Thanks to the convenient location, tram and bus connections are easily accessible, taking you quickly to Central Station, Scheveningen Beach, or other parts of the city.

Layout:
Upon entering through the well-maintained entrance, you reach the first floor via the stairwell, where the apartment’s entrance is located. From the hallway, you have access to all rooms. At the front is a bright bedroom, ideal as a master bedroom or home office. The spacious living room is remarkably large and bright thanks to the large windows and the sliding doors that provide access to the balcony – a lovely spot to enjoy the fresh air.

The modern kitchen is efficiently designed and equipped with all conveniences, including a generous countertop, gas hob, oven, stainless steel extractor hood, dishwasher, and fridge-freezer. At the rear is the second bedroom, adjacent to the balcony. The neat bathroom features a walk-in shower and a washbasin cabinet, and the separate toilet is equipped with a small sink.

On the ground floor, you will also find a private storage room, ideal for bicycles or extra storage.

Particulars:
• Living area: approx. 73 m²
• 2 bedrooms
• Energy label C
• Fully equipped with plastic window frames and double glazing
• Private storage room for bicycles, etc.
• Heating and hot water via Intergas HRE combi boiler (year 2020)
• Modern kitchen with built-in appliances
• Leasehold: perpetual mandatory reissue with a ground rent obligation of €253 per half year (first interest revision on January 1, 2028)
• Quick delivery possible
• Paid parking / permit holders:
• Mon–Thu: 09:00 – 24:00
• Fri: 09:00 – Sat 02:00
• Sat: 09:00 – Sun 02:00
• Sun: 13:00 – 24:00
• Rate: € 7.00 per hour, max. 120 minutes
• Public transport: trams 2, 3, 4 & 34 and buses 25 & 51
• Within walking distance of all amenities
• Sale via Eerlijk Bieden; our sales conditions can be found on the Eerlijk Bieden property website

Homeowners’ Association:
• Active and professionally managed homeowners’ association
• Monthly contribution: € 199.25
• Includes building insurance and multi-year maintenance plan
• Meets at least once a year

EXCITED TO SEE MORE? REQUEST A VIEWING VIA FUNDA OR THROUGH OUR ISEE.NL OFFICE WEBSITE. YOU WILL IMMEDIATELY RECEIVE AN EMAIL WITH OUR SCHEDULER, ALLOWING YOU TO EASILY PLAN AN APPOINTMENT YOURSELF.

Kenmerken

Prijs
€ 345.000 k.k.
Status
Beschikbaar
Oplevering
In overleg

Bouw

Soort appartement
Portiekwoning, Appartement
Soort bouw
Bestaande bouw
Bouwjaar
1934
Onderhoud binnen
Goed
Onderhoud buiten
Goed

Oppervlakten en inhoud

Woonoppervlakte
73m²
Inhoud
250m³

Indeling

Aantal kamers
3
Aantal slaapkamers
2
Aantal verdiepingen
1

Energie

Energielabel
C

Plattegronden

Locatie

[ { "address": "Lijnbaan 130", "zipCode": "2512 VC", "city": "Den Haag", "lat": 52.0730373, "lng": 4.299691, "heading": 0, "pitch": 0 } ]

Reageer

Uw bericht is naar ons verzonden. Wij nemen zo snel mogelijk contact met u op.

Er is iets mis gegaan met het versturen van het formulier.
Controleer of u alle velden (goed) heeft ingevoerd en probeer het nog een keer.

U bent geen robot, hoeveel is ?  

Vergelijkbare woningen

Verkocht
Haringkade 147
2584 ED Den Haag
€ 350.000 k.k.
80m² 2 kamers
Verkocht
Rederijkerstraat 205
2531 VL Den Haag
€ 300.000 k.k.
77m² 4 kamers
Verkocht
Bruinbankstraat 19
2583 PC Den Haag
€ 400.000 k.k.
96m² 4 kamers
Verkocht
Heemskerckstraat 29 A
2518 EJ Den Haag
€ 300.000 k.k.
54m² 3 kamers