Barneveldstraat 27, Den Haag Verkocht

Omschrijving

Lichte, sfeervolle en goed onderhouden benedenwoning met een zonnige achtertuin op het noordwesten.

Prachtig, instapklare parterrewoning gelegen in de wijk Rustenburg Oostbroek. Dit fraaie appartement is gemoderniseerd en direct te betrekken. De gehele woning is voorzien van een nette laminaatvloer en is afgewerkt in neutrale kleuren. Deze smaakvol afgewerkte woning beschikt onder andere over een zonnige achtertuin op het noordwesten, een lichte woon- en eetkamer, een slaapkamer, een nette keuken en verzorgd sanitair.
De ligging is gunstig in een levendige buurt met scholen, winkels en horecagelegenheden aan de Apeldoornse- en Dierenselaan. Groen-, sport- en recreatievoorzieningen, zoals het Zuiderpark, bevinden zich in de nabije omgeving. Binnen 10 minuten fietsen ben je in het centrum van Den Haag. De Haagse Markt ligt op slechts 5 minuten fietsen. Diverse tramhaltes zijn op loopafstand, en zowel station Hollands Spoor als station Moerwijk zijn binnen enkele minuten per fiets bereikbaar. Ook winkelcentrum Leyweg en het Stadhuis van Escamp liggen op fietsafstand. Kortom: een aantrekkelijke woning op een uitstekende locatie.

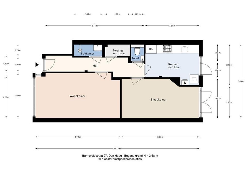
Indeling:
Begane grond:
Voortuin, entree van het appartement. Hal met toegang tot de lichte woonkamer. Badkamer voorzien van een douche en wastafel. Berging met meterkast. Toiletruimte met fonteintje. De keuken bevindt zich aan de achterzijde en is uitgerust met een 4-pits gaskookplaat, afzuigkap, koelkast, vaatwasser en oven. De slaapkamer ligt eveneens aan de achterzijde van de woning. De riante achtertuin is gelegen op het noordwesten en biedt volop ruimte en zon.

Bijzonderheden:
- Woonoppervlakte ca. 53,40 m2;
- Voorzien van kunststof,- en houten kozijnen met grotendeels dubbelglas;
- Gelegen op eigen grond;
- Snelle oplevering mogelijk;
- Verwarming en warm water via Intergas combiketel HR Intergas (bouwjaar 2024)
- Betaald parkeren van maandag t/m zondag (18:00 – 24:00 uur)
- Voldoende openbare parkeergelegenheid in de directe omgeving
- Projectnotaris van toepassing;
- Nabij diverse voorzieningen: winkels, scholen, speeltuinen, recreatiegebied Rijswijkse Bos, sportfaciliteiten en kinderdagverblijven.

Grotendeels recent gerenoveerde en goed onderhouden woning:
- Kruipruimte geisoleerd middels isolatiechips in 2022
- Gemoderniseerde sanitair en laminaat inclusief plinten in 2022;
- HR Intergas combiketel geplaatst in 2024


Vereniging van Eigenaren (VvE):
- Actieve vereniging van eigenaren met een maandelijkse bijdrage van € 147,64
- 1/3 e aandeel in de gemeenschap;
- Collectieve opstalverzekering aanwezig;
- Ingeschreven in de kamer van koophandel;
- Gemeenschappelijke opstalverzekering;
- Het meer jarenonderhoudsplan.


Bright, charming, and well-maintained ground-floor apartment with a sunny southwest-facing backyard.

Beautiful, move-in ready ground-floor apartment located in the Rustenburg Oostbroek district. This attractive home has been modernized and is ready for immediate occupancy. The entire apartment features a neat laminate floor and is finished in neutral tones. This tastefully finished home includes a sunny southwest-facing backyard, a bright living and dining room, one bedroom, a neat kitchen, and well-maintained sanitary facilities.

The location is convenient, situated in a lively neighborhood with schools, shops, and dining options on Apeldoornse- and Dierenselaan. Green spaces, sports, and recreational facilities—such as the Zuiderpark—are nearby. The center of The Hague can be reached within 10 minutes by bike. The Hague Market is just a 5-minute bike ride away. Several tram stops are within walking distance, and both Hollands Spoor and Moerwijk train stations are only a few minutes away by bike. Shopping center Leyweg and the Escamp City Hall are also within cycling distance. In short: an attractive home in an excellent location.

Layout:
Ground floor: front yard, entrance to the apartment. Hallway with access to the bright living room. Bathroom with shower and washbasin. Storage space with meter cupboard. Separate toilet with a small sink. The kitchen is located at the rear and is equipped with a 4-burner gas stove, extractor hood, refrigerator, dishwasher, and oven. The bedroom is also located at the rear of the home. The spacious backyard, facing southwest, offers ample space and sunshine.

Particulars:
- Living area approx. 53.40 m²
- Fitted with both plastic and wooden window frames, mostly with double glazing
- Freehold property
- Quick delivery possible
- Heating and hot water via Intergas high-efficiency combi boiler (year of construction: 2024)
- Paid parking from Monday to Sunday (6:00 PM – 12:00 AM)
- Ample public parking in the immediate vicinity
- Close to various amenities: shops, schools, playgrounds, recreational area Rijswijkse Bos, sports facilities, and daycare centers
- Sale through project notary

Largely recently renovated and well-maintained property:
Crawl space insulated with insulation chips in 2022
Modernized sanitary facilities and laminate flooring including skirting boards in 2022
High-efficiency Intergas combi boiler installed in 2024

Homeowners’ Association (VvE):
Active association with a monthly contribution of €147,64
1/3 ownership share in the community
Collective building insurance in place
Registered with the Chamber of Commerce
Communal building insurance
Multi-year maintenance plan available

Kenmerken

Status
Verkocht
Oplevering
In overleg

Bouw

Soort appartement
Benedenwoning, Appartement
Soort bouw
Bestaande bouw
Bouwjaar
1937
Onderhoud binnen
Goed
Onderhoud buiten
Matig

Oppervlakten en inhoud

Woonoppervlakte
53m²
Inhoud
200m³

Indeling

Aantal kamers
2
Aantal slaapkamers
1
Aantal verdiepingen
1

Energie

Energielabel
C

Buitenruimte

Tuin
Achtertuin, Voortuin
Voortuin
Zuidoost, 11m², 457×200cm

Plattegronden

Locatie

[ { "address": "Barneveldstraat 27", "zipCode": "2573 WB", "city": "Den Haag", "lat": 52.0616377, "lng": 4.289944, "heading": 0, "pitch": 0 } ]

Reageer

Uw bericht is naar ons verzonden. Wij nemen zo snel mogelijk contact met u op.

Er is iets mis gegaan met het versturen van het formulier.
Controleer of u alle velden (goed) heeft ingevoerd en probeer het nog een keer.

U bent geen robot, hoeveel is ?  

Vergelijkbare woningen

Verkocht
Heemskerckstraat 29 A
2518 EJ Den Haag
€ 300.000 k.k.
54m² 3 kamers
Verkocht
Oudemansstraat 398
2522 TH Den Haag
€ 250.000 k.k.
70m² 3 kamers
Verkocht
Velpsestraat 136
2573 SV Den Haag
€ 285.000 k.k.
86m² 4 kamers
Verkocht
Forellendaal 988
2553 KV Den Haag
€ 315.000 k.k.
97m² 3 kamers