Forellendaal 988, Den Haag Sold

Description

Royaal 3-kamerappartement met moderne keuken, fraai sanitair en zonnig balkon met vrij uitzicht.

Dit ruime appartement, gelegen in een portiekflat uit 1966, beschikt over een moderne keuken, strak afgewerkt sanitair en een heerlijk balkon. De woning maakt deel uit van een complex dat de komende jaren een grootschalige transformatie ondergaat naar een duurzaam en modern geheel (energielabel A(+).

DUURZAAM EN TOEKOMSTBESTENDIG WONEN:
Het complex wordt volledig gerenoveerd met oog voor duurzaamheid en energie-efficiëntie. Zo zijn er kunststof kozijnen met triple glas geplaatst voor optimale isolatie. De vernieuwde gevel is voorzien van isolatie en moderne stenen strips, wat niet alleen bijdraagt aan een hedendaagse uitstraling maar ook aan een lagere energierekening. Daarnaast zijn de vloeren en het dak geïsoleerd en is er een ventilatie- en luchtbehandelingssysteem geïnstalleerd voor een gezond binnenklimaat. De start van de werkzaamheden is oktober 2025.

Ligging:
Het appartement is gelegen in de wijk Kraayenstein in Loosduinen, een rustige en groene omgeving met uitgebreide voorzieningen. Winkelcentra (zoals Kraayenstein onder de flat en de Loosduinse Hoofdstraat), scholen, sportfaciliteiten en openbaar vervoer bevinden zich op loop afstand. Ook recreatiegebieden zoals Madestein, landgoed Ockenburgh, De Uithof en het strand van Kijkduin zijn nabij gelegen.

Bent u op zoek naar een instapklaar appartement met een prachtig uitzicht en een ideale ligging? Dan is dit de perfecte woning voor u!

Indeling
Begane grond:
Afgesloten portiek met belplateau, liften en trappenhuis.

1e verdieping:
Privéberging.

3e verdieping:
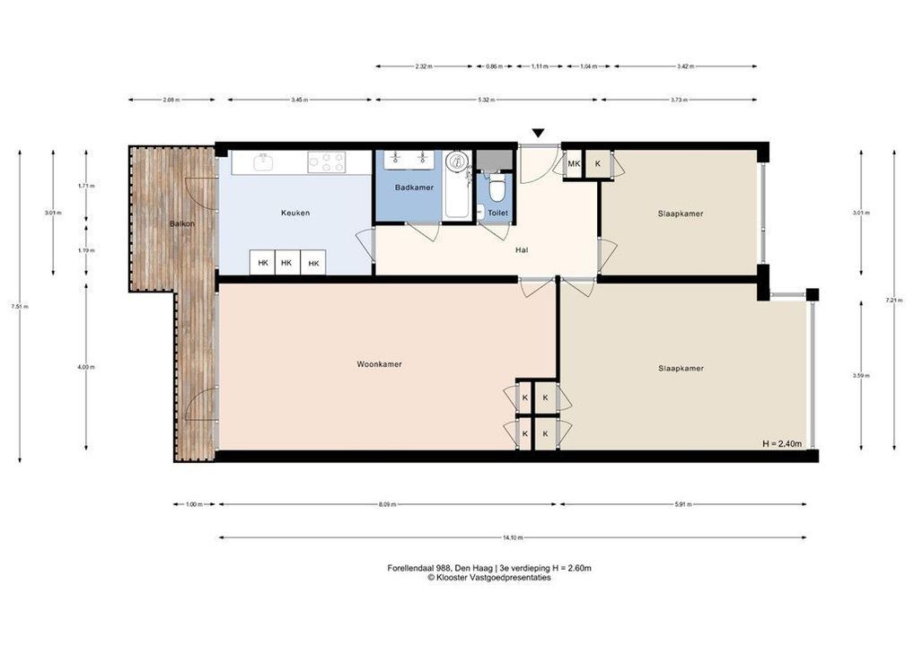
Entree, hal met meterkast, modern toilet met fonteintje, badkamer voorzien van ligbad en wastafelmeubel met dubbele wastafel. Ruime, lichte woonkamer met vrij uitzicht aan de achterzijde op groen en bomen. Royale slaapkamer met erker. Tweede ruime slaapkamer. Woonkeuken met modern keukenblok, voorzien van dubbele oven, 5-pits kookplaat, vaatwasser, Quooker en veel opbergruimte. Toegang tot het balkon aan de achterzijde met vrij uitzicht.

Bijzonderheden:
- Woonoppervlakte: ca.
- Eigen grond 97 m2;
- Twee slaapkamers;
- Het complex wordt verduurzaamd tot energiezuinig en modern complex voorzien van de nieuwe gevel, vloer- en dakisolatie en een luchtbehandelingssysteem (co2 vraag gestuurd). De gemeente Den Haag geeft de vereniging van eigenaren een subsidie van € 2,5 miljoen in verband met de verduurzaming.
-Het complex voldoet na de renovatie en de huidige standaard. Na renovatie is onderhoud van complex van een uitstekend niveau (2 impressie foto's bijgevoegd). De verduurzaming is geïntegreerd in het meerjarenonderhoudsplan, waaronder het toekomstig onderhoud aan ondermeer dak, gevel en liften gefinancierd wordt.
- Moderne keuken en sanitair
- Laminaat vloer in de gehele woning
- Privé berging op de 1e verdieping
- Warmwater via een nieuwe boiler, verwarming blokverwarming
- Biedingen via Eerlijk Bieden
- Lift aanwezig;
- Op loopafstand van alle voorzieningen;
- parkeren op eigen terrein;
- Voldoende en openbaar parkeergelegenheid rondom het gebouw;

Vereniging van eigenaren: Actieve vereniging van eigenaren:
- maandelijkse bijdrage € 247,00 en de bijdrage voor rente en aflossing van de verduurzaming (lening vereniging van eigenaren): € 291,40 (rente is aftrekbaar in box 1) & voorschotstookkosten € 65,00
- Na renovatie wordt verwacht dat de stookkosten met 50% dalen, rente aftrek € 75 (indicatie afhankelijk van inkomen)
- Collectieve opstalverzekering aanwezig;
- Ingeschreven in de kamer van koophandel;
- Gemeenschappelijke opstalverzekering;
- Meer jarenonderhoudsplan aanwezig.

Details

Decoration
Partly furnished
Status
Sold
Acceptance
In consultation

Build

Apartment type
Walk-up flat, Apartment
Build type
Existing
Build year
1976
Maintenance inside
Good
Maintenance outside
Good

Surface and volume

Living surface
97m²
Volume
305m³

Layout

Rooms
3
Bedrooms
2
Number of floors
1

Energy

Energy label
C

Floor plans

Location

[ { "address": "Forellendaal 988", "zipCode": "2553 KV", "city": "Den Haag", "lat": 52.0483998, "lng": 4.2363902, "heading": 0, "pitch": 0 } ]

Reply

The form has successfully been sent. We wil contact you as soon as possible.

Something went wrong while sending the contact form. Check if you correctly filled in all required fields and try again.

How much is ?  

Related houses

Sold
Haringkade 147
2584 ED Den Haag
€ 350.000 k.k.
80m² 2 rooms
Sold
Heemskerckstraat 29 A
2518 EJ Den Haag
€ 300.000 k.k.
54m² 3 rooms
Sold
Velpsestraat 136
2573 SV Den Haag
€ 285.000 k.k.
86m² 4 rooms
Sold
Annie Foorestraat 21
2522 HN Den Haag
€ 275.000 k.k.
80m² 3 rooms